Квартиры

Двухкомнатная квартира в центре все рядом.сдам долгосрочно.до лета или посуточно.цена зависит от выбранного варианта.
2023-09-23
Дом панельный, ванная и туалет совмещены, частично сделан ремонт, газовая колонка, есть счётчики на газ и воду.
2023-09-23
Продается отличная 2-комнатная квартира с мебелью и техникой в теплом кирпичном доме.
2023-09-22
Сдаётся двухкомнатная квартира, свежий ремонт, стиральная машина, холодильник, недалеко метро, коммунальные платежи отдельно.
2023-09-21
Продам (возможен обмен - предлагайте, обсудим) 2-х комнатную квартиру большую, уютную без плесени, гнили и посторонних запахо...
2023-09-21
Продам 2-х комнатную квартиру по адресу Камчатский кр. Алеутский р. с.Никольское. ул.Гагарина д.3. Площадь 54 м. кв.
2023-09-21
Комнаты изолированные,сан узел раздельный,балкон,лифт отсутствует цент г.Ломоносов,г.Санкт-Петербург.
2023-09-21
В квартире печное отопление, электричество, вода. Санузла нет, ремонта нет.
2023-09-21
Квартира посуточно в Автозаводском районе. Сдаю уютную квартиру в новом доме ЖК "Юг", с развитой инфраструктурой.
2023-09-21
Поселок Ханино находится в лесной зоне, дороги асфальтированы, автобус до районного центра ходит по расписанию (18км), есть у...
2023-09-21
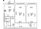
Квартира в районе площади Ленина имеет две комнаты 11,7 и 16,6 кв.
2023-09-20
Евродвушка с лоджией в малоэтажном ЖК 2018 года постройки.Никто не жил,никто не прописан.Все новое ...
2023-09-20
Продажа 1к квартиры в Каче у моря просторная крупногабаритная квартира с высокими потолками в историческом доме.
2023-09-20
Сдам посуточно. Есть разные квартиры в центре города. Цены от 2000 до 3500 рублей. Цена зависит от срока аренды.
2023-09-20
СРОЧНАЯ ПРОДАЖА квартиры 120 кВ м на 4 этаже 4-этажного особняка 1995 года на второй линии от Волги, в самом центе историчес...
2023-09-20
Продам квартиру, школа, д/сад, магазины, остановка все рядом,требуется частичный ремонт,есть сухой погреб
2023-09-19
Продам двухкомнатную квартиру город Стрежевой Томская область, дом 306, 57 кв.м., 4 этаж.
2023-09-18
Продаю 2-х комнатную квартиру, с мебелью и новой бытовой техникой в поселке Северный (5 км. от г.
2023-09-17
В квартире предчистовая отделка, с/у совмещённый, из комнаты выход на застеклённый балкон, во дворе детская площадка, рядом М...
2023-09-17
Предлагаем студию с московской пропиской,мебелью,техникой ,евро ремонт.
2023-09-17
СОБСТВЕННИК!! Отличный вариант планировки ЕВРОТРЕШКИ для современной семьи: большая кухня-студия 18м2, две спальни - одна с ...
2023-09-15
Продам 2 комн. квартиру, уютная,теплая,светлая,окна на две стороны,комноты квадратные,изолированные,сан узел раздельный,больш...
2023-09-15
Продам 2-комн., пос.Кожаны, Красноярское Загорье. 6 этаж, Площадь 51,8кв.м.
2023-09-15
До моря 12 минут. Изумительный вид на горы и реку из окон.
2023-09-14
Продажа очень срочная. По-этому и такая цена. Без торга. Только за деньги, без кредитов и долгой волокиты.
2023-09-14
Выкуплю вашу квартиру,комнату,долю за наличные в день обращения.От собственника.
2023-09-14
Продается отличная однокомнатная квартира по улице Прибалтийская 31/1 на 2м этаже 9 этажного дома. Окна во двор.
2023-09-13
Посуточно 1 комн. квартира в центре города Уссурийска. В квартире сделан ремонт. Имеется всё для комфортного проживания.
2023-09-13
Продам квартиру с хорошим ремонтом, транспортная доступность м.Котельники 118 км., рядом автобусная остановка, ж/д.
2023-09-13
С квартирой идёт гараж и два саря. Окна пластиковые во всех комнатах. Входные двери металлические. Детский сад, Школа рядом.
2023-09-13
Продам квартиру в новом ЖК Мандарин. Дом сдан в конце 2022г. Квартира не угловая, в черновой отделке.
2023-09-13
Сдам посуточно апартаменты в MOSKOV SITI. Романтические встречи ,Вечеринки , мероприятия различных форматов.
2023-09-12
Прямая продажа от собственника. Светлая и тёплая квартира в отличном микрорайоне.
2023-09-12
Гражданам РФ сдается 2-х к. кв., комнаты 16м2 и 8м2, кухня - 8м2, лоджия. Комнаты изолированные, санузел совмещённый.
2023-09-12
Продам 3 х комнатную квартиру организации,лоджия имеется,чистенькая.имеется долг за коммунальные услуги
2023-09-11